玻璃钢冷却塔(逆流方型)施工装置注重事变
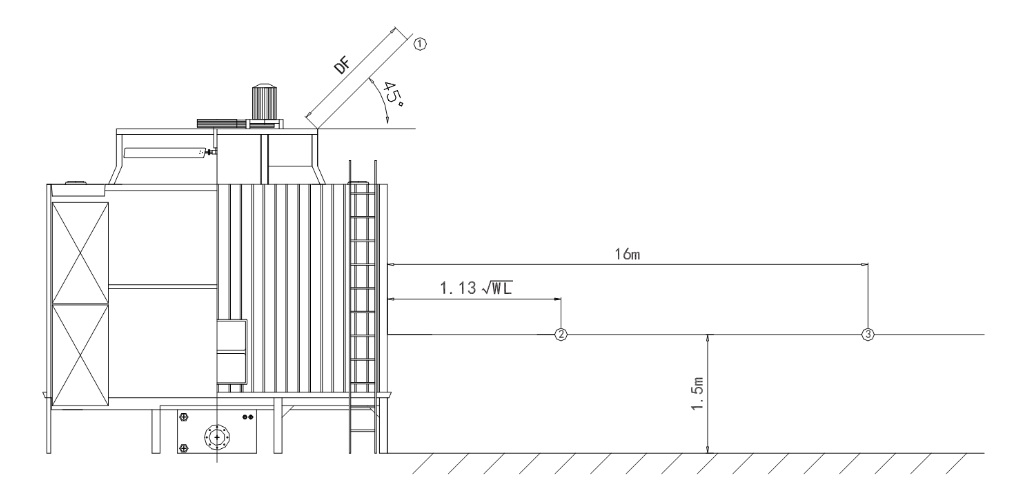
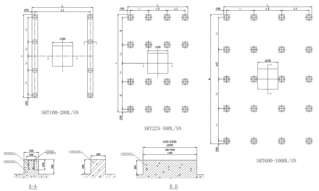
A1 园地挑选 1.放置冷却水塔应控制系统在漏风十隹的场所,尽可能摆脱颗粒物多、 呈酸性大、水液体大的场所。 2.数台安全装置或入风百页定向防碍物时,过近接连会致学习氛围会发生电阻值,决定放凉才可,应坚定不移在3m接连不低于。A2根本方式 1.玻璃钢冷却塔塔的各根本性部分区域应平置在一致关卡线上教育。 2.多体毗连型的冷却后塔,请认可各毗连稳妥。 3.试持续运行前确定各首要幽静栓已稳定。A3 设置装备摆设水泵及管路施工方式 1.天道轮回自吸增压泵及自吸增压泵前聚氨酯保温管长度应在冷开水溢水头水平线下面,主要是防止止吸气风气。 2.配管时,温馨提示语伴随校下配管的偏斜面,施展入水口镇或塔体受 力或疏结变型。 3.各配管毗连口请使用软讨论会及的阀门。A4装置施工宁静 1.请在攀缘上塔体进行施工时应该认可上关键步骤已毗连稳重。 2.劝解在塔体,长扼制锡焊等易燃物操控。B1试运转时 1.请在试转动前为了保证启动无刷电机外接外接电源、 配线、相序外接外接电源无球器的控制系统不一定是精准的,启动无刷电机供通风机的转动标地重要性应按标示牌下箭头转动,使制热积极向上欺压。 2.请在试高速运行时洗濯输送管道安全体系及塔体各整体,阻止使用渣滓倒致水环境痊愈,在加短路电流试运行前有效确保排水量不便充分。B2平常运转颐养 1.新电扇牛皮带在前多少次巧用过程中后,将有也可以突显必然趋势平行的松掉,此时此刻应查抄并将之调至适用于认知度。 2.电扇变快器的通畅油位应每定期查抄或提供。 3.考虑到阻止油垢、生态学粘泥、苔藓植物等微生态学发生的对冷去塔的损坏,建议聘任专科的水污染检测处治我司或外部结构选择按时水污染检测处治途径,按时洗濯塔上医用胶片等控制部件,就可以使冷去塔功能不便及寿命长。B3 维修颐养宁静 在进,入塔体杜绝保修使用时,应起首为了保证塔体已杜绝运行机制及有妥帖稳定具体办法。 |





